压缩医用氧气怎么使用洁净手术部医用气体系统设计探讨

新闻资讯2026-04-21 06:47:48
压缩医用氧气怎么使用洁净手术部医用气体系统设计探讨_https://www.jmylbn.com_新闻资讯_第1张



洁净手术部医用气体系统设计探讨


【摘  要】随着医疗卫生事业的快速发展,医院洁净手术部已经成为各类医院的基本装备,其中洁净手术部医用气体设计是其关键环节之一,医用气体系统作为生命支持系统,对洁净手术部医疗发展起着至关重要的作用。本文结合目前医院的基本情况,详细说明洁净手术部医用气体系统的设计方案,有效解决目前洁净手术部医用气体系统的缺失、不规范等问题,促进医疗卫生事业发展。


【关键词】医用气体  洁净手术部  生命支持系统


前言


随着现代化快速发展,我国生活质量水平得到显著提高,促使医疗行业得到显著发展,洁净手术部医用气体系统作为生命支持系统,其重要性不言而喻。随着医疗新技术和新的手术工具的不断涌现,带动了手术量的迅猛上升,使洁净手术部医用气体的需求不断增加。医疗企业需要提高医院洁净手术部内医用气体质量,保证病人的生命安全,从中不断获得经验,将其放在首位,不断提高医院洁净手术内医用气体质量,加大对设计质量的管理,促进医疗企业发展。


洁净手术部医用气体种类及作用[1]


洁净手术部常用的医用气体包括:氧气、负压(真空)、压缩空气、氮气、氧化亚氮、二氧化碳、废气回收排放系统等。


2.1 氧气


氧气的是维持生命最基本的元素,医疗上一般给缺氧患者进行输氧,如果直接输入高纯度的氧气,会对人体产生很大的危害。因此,医学上的氧气浓度必须得到有效控制,一般不能超过40%。普通患者通过湿化瓶吸收氧气,危重患者通过呼吸机吸氧。此外,氧气还可以用作高压氧舱、潜水疾病和雾化治疗以及煤气中毒患者等。


2.2 负压(真空)


负压真空用于收集、处理手术或治疗中产生的液体废物,如痰、脓血、腹水、清洗污物等。


2.3 压缩空气


压缩空气作为手术室、重症监护室、抢救室呼吸机的动力;为病人、特别是重症病人提供氧气与空气混合气体。


2.4 氮气


氮气作为医疗设备和工具的动力气源,液态氮还可用于皮肤科患者的冷冻治疗等。


2.5 氧化亚氮


氧化亚氮是一种无色、好闻、有甜味的气体,人少量吸入后,面部肌肉会发生痉挛出现笑的表情,故俗称笑气,医疗上用氧化亚氮和氧气的混合气作麻醉剂通过封闭方式或呼吸机给病人吸入。


2.6 二氧化碳


二氧化碳在医学上可以用于腹腔镜检查和纤维结肠镜检查,实验室用于培养细菌。经过加压降温可以制作干冰,用于治疗白内障和血管疾病患者。


2.7 废气回收排放


麻醉吸废气装置主要处理患者麻醉过程中呼出的废气,包括空气、二氧化碳、一氧化二氮及安氟醚、七氟醚、异氟醚等醚类气体。麻醉废气对医护人员有危害,同时由于患者手术中产生的麻醉废气中有一定的酸性物质,对手术设备会产生一定的腐蚀,所以需要麻醉吸废气装置处理这些废气。


手术部医用气体现状


目前随着我国医疗卫生事业的进步,很多医院的洁净手术部医用气体供应系统无法满足手术用气需求,存在很多问题,如下:


(1)很多医院的洁净手术部的医用气体管道敷设在洁净手术部洁净走廊吊顶内,检修阀也设置在洁净走廊吊顶内,检修时需拆卸洁净走廊吊顶,检修难度大,同时也会影响手术区洁净度。


(2)很多医院的洁净手术部的医用气体阀门设置在手术室内,检修口也设置在手术室内,不符合规范要求,检修也不方便。同时目前很多医院的洁净手术部均只在吊顶上设置了阀门,没有设置阀门箱,检修很不方便。


(3)手术室射流式废气终端的驱动空气管道没有单独设置,而是和医疗空气管道共用的,但是在医疗空气气源设计、管道规格设计时没有考虑手术室射流式废气终端的驱动空气流量,导致空气管道偏小,空气供应源供应不足。


(4)废气排放管道直接接到手术室排风系统;手术室麻醉废气排放管道过小;每间手术室废气管道接出手术室后汇总为一根管路进行排放,射流式麻醉废气系统排放压力较低,废气无法有效排放。


(5)医院洁净手术部手术室情报面板上对医用气体的压力监测信号均来自手术区域护士站内压力监测装置或者未进行监测,不能单独监测每间手术室的压力,出现报警时无法监测是哪间手术室医用气体压力出现了问题,同时检修会影响其他手术室正常运行。


(6)医院洁净手术部墙面终端只设置了一组,没有考虑紧急情况下的应急备用。


(7)手术室内没有对医用气体浓度进行监测、显示、报警,无法保证气体是否泄漏。


洁净手术部医用气体解决方案


(1)洁净手术部所有的走廊横管敷设在污物走廊,由污物走廊进入手术室。


(2)在污物走廊设置医用气体阀门箱,不在手术室内设置气体阀门,也不设置检修口,检修时关闭污物走廊医用气体阀门箱即可。


(3)设计时需单独考虑射流式终端的驱动空气需求量。射流式终端的驱动空气管道单独从走廊横管接入,不与医疗空气管道共用或者增大医疗空气管道管径。


(4)手术室废气通过管道排放到医院废气排放井,采用射流式废气排放系统时每间手术室废气管道建议单独敷设。


(5)在每间手术室医用气体阀门箱出口单独设置压力传感器,各气体管道压力信号直接传入每间手术室情报面板单独进行监测,某间手术室压力出现异常不影响其他手术室正常使用。


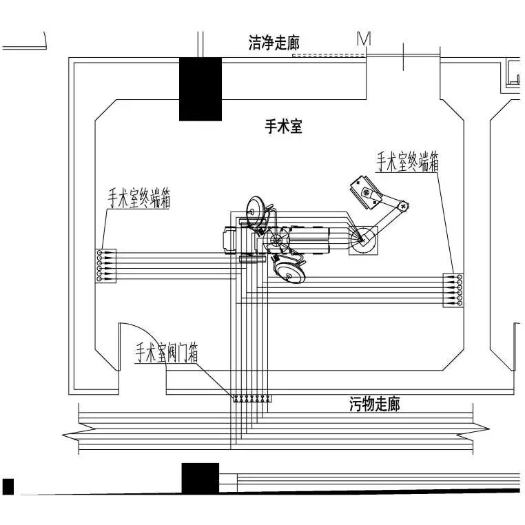
(6)手术室内在吊塔上设置1组医用气体终端、墙面上设置2组医用气体终端,保证1用1备1应急,如图1。


(7)在手术室内设置医用气体浓度监测报警系统,在情报面板上进行显示,出现异常时发出报警信号,保证手术室内气体的浓度符合标准要求,如图2。

压缩医用氧气怎么使用洁净手术部医用气体系统设计探讨_https://www.jmylbn.com_新闻资讯_第2张

图1 手术室设备布置图


压缩医用氧气怎么使用洁净手术部医用气体系统设计探讨_https://www.jmylbn.com_新闻资讯_第3张

图2 手术室气体浓度监测系统面板


洁净手术室医用气体设计


5.1 洁净手术部医用气体种类设计


其中氧气、负压(真空)、压缩空气、废气回收排放是必不可少的;腹腔手术室和心外科手术室需要二氧化碳;神经外科、骨科、耳鼻喉科手术室需要氮气;氧化亚氮根据医院采用的麻醉方式来确定,采用药物进行麻醉,则不需要配置[2]


5.2 洁净手术部医用气体系统的压力及终端流量参数应符合表5-1的规定[3]


5.3 洁净手术部医用气体系统流量设计。


洁净手术部医用气体系统流量的计算可按照下式计算:

Q=∑[Qa+Qb(n-1)η]

式中:Q----气源计算流量(l/min)

Qa---终端处额定流量(l/min)

Qb---终端处计算平均流量(l/min)

n------床位或计算单元数量

η-------同时使用系数


根据GB50751-2012《医用气体工程技术规范》附录B表5-2取值以及上述公式计算[3]


压缩医用氧气怎么使用洁净手术部医用气体系统设计探讨_https://www.jmylbn.com_新闻资讯_第4张

表5-1 医用气体终端处的压力及流量表

压缩医用氧气怎么使用洁净手术部医用气体系统设计探讨_https://www.jmylbn.com_新闻资讯_第5张

表5-2 流量计算参数表


氧气、负压真空、压缩空气流量计算参数(GB50751-2012 附录B)


氮气、氧化亚氮、二氧化碳、废气回收排放流量计算参数(GB50751-2012 附录B)


5.4 洁净手术部医用气体管道设计


氧气、负压、空气、氮气、二氧化碳、氧化亚氮管道宜采用无缝不锈钢管或无缝铜管;废气回收排放管道宜采用镀锌钢管或PVC-U管。


管道的管径按照GB 50316-2000(2008)版《工业金属管道设计规范》[4]计算:

Di=0.0188[Wo/νρ]0.5

Wo=Qρo

依据GB 50333-2013《医用洁净手术部建筑技术规范》9.3.3条要求气体流速不应大于10m/s[2];先设定气体平均流速为:10m/s。


式中:Di——管子内径(m)

Wo——质量流量(kg/h)

ν——平均流速(m/s)

ρ——流体密度(kg/m3)

Q——体积流量(m3/h)

ρo——流体密度(kg/ m3)


5.5洁净手术部供应源及配套附属设备设计


5.5.1 洁净手术部供应源设计

氧气、负压、空气供应源采用医院的集中供应源,由大楼的医用气体设计单位预留到洁净手术部医气管井处。

氮气、二氧化碳、氧化亚氮采用汇流排供应源,气体汇流排一般设置在设备层。

废气回收排放系统可采用废气机组抽吸或采用射流式终端排放的形式。


5.5.2 洁净手术部配套附属设备设计

在洁净手术部医气管井设置区域阀门箱、二级稳压箱、氧气流量计;在每间手术室污物走廊一侧设置手术室阀门箱;在每间手术室设置气体浓度监测系统;在每间手术室设置手术室终端箱,同时将管道接到吊塔上。


【参考文献】

  1. 谭西平,赵奇侠,谢磊,等 医用气体系统规划建设与运行管理指南[M],北京,中国质检出版社、中国标准出版社,2016

  2. 中华人民共和国住房和城乡建设部.医院洁净手术部建筑技术规范[S].北京:中国建筑工业出版社,2013.

  3. 中华人民共和国住房和城乡建设部.医用气体工程技术规范[S].北京:中国计划出版社,2012

  4. 国家质量技术监督局、中华人民共和国建设部.工业金属管道设计规范[S].北京:中国计划出版社,2008


【作  者】雍思东  王龙  黄杰

(四川港通医疗设备集团股份有限公司 四川省成都市)


END


近期活动:


压缩医用氧气怎么使用洁净手术部医用气体系统设计探讨_https://www.jmylbn.com_新闻资讯_第6张


近期活动:


压缩医用氧气怎么使用洁净手术部医用气体系统设计探讨_https://www.jmylbn.com_新闻资讯_第7张


近期活动:

压缩医用氧气怎么使用洁净手术部医用气体系统设计探讨_https://www.jmylbn.com_新闻资讯_第8张


压缩医用氧气怎么使用洁净手术部医用气体系统设计探讨_https://www.jmylbn.com_新闻资讯_第9张